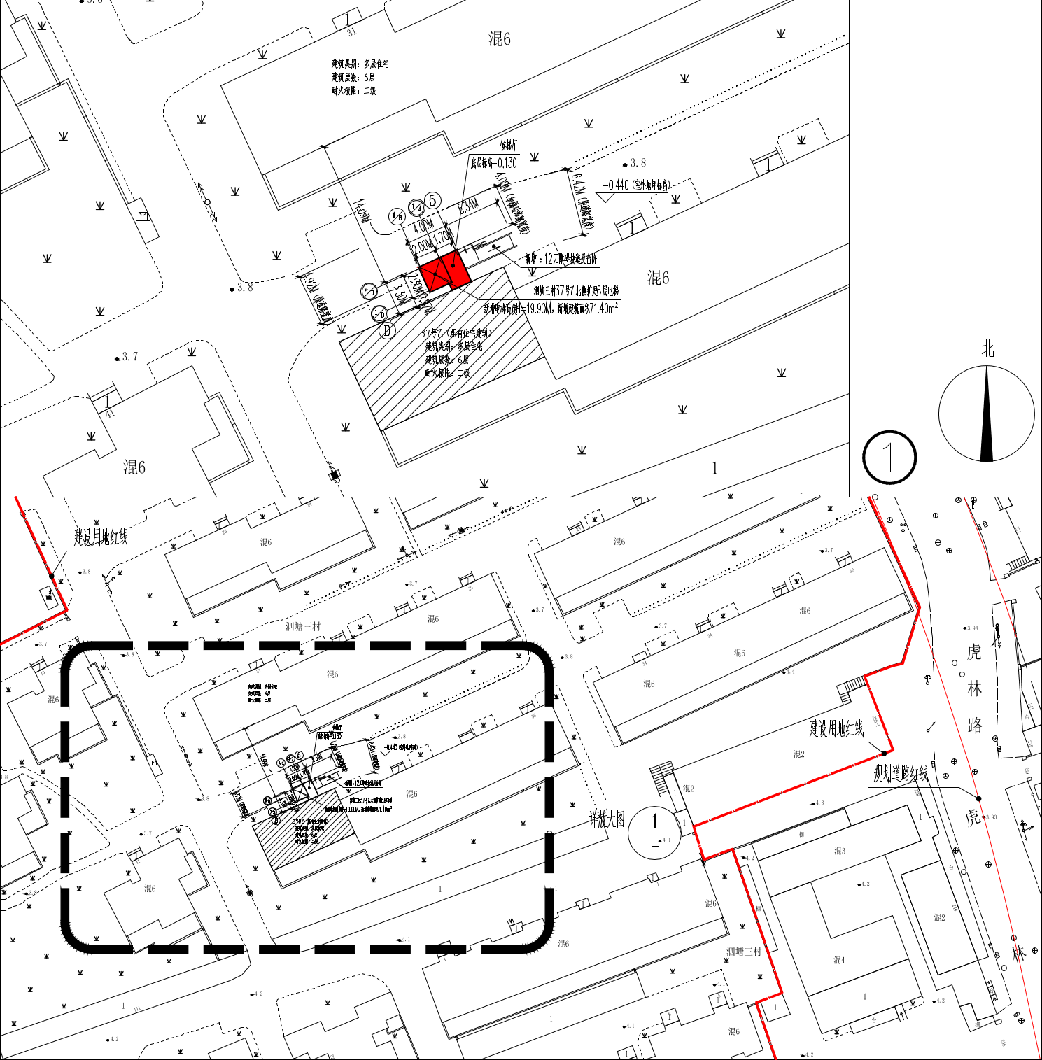
依据《上海市建设工程设计方案规划公示规定》的要求,由上海市宝山区张庙街道办事处监督,宝山区泗塘三村37号乙多层住宅加装电梯项目设计方案将进行公示,敬请关注。
1、公示名称:宝山区泗塘三村37号乙多层住宅加装电梯项目设计方案
2、公示网站:宝山区政府门户网站
3、公示现场地点:泗塘三村小区公示栏
4、公示期限:2026年2月13日至2026年2月22日
5、反馈意见截止期:2026年3月1日
6、意见反馈途径:
信函方式:上海市宝山区张庙街道办事处
通讯地址:宝山区呼玛路800号
邮政编码:200431
7、项目情况咨询:
信函方式:上海市宝山区泗塘三村(第五届)业主委员会
通讯地址:上海市宝山区泗塘三村49号101室
邮政编码:200431
联系电话:021-66227103
公告单位:宝山区张庙街道办事处
2026年2月13日
.png)