依据上海市建设工程设计方案规划公示的规定,上海城建职业学院宝山校区改扩建工程设计方案将进行公示,敬请关注。
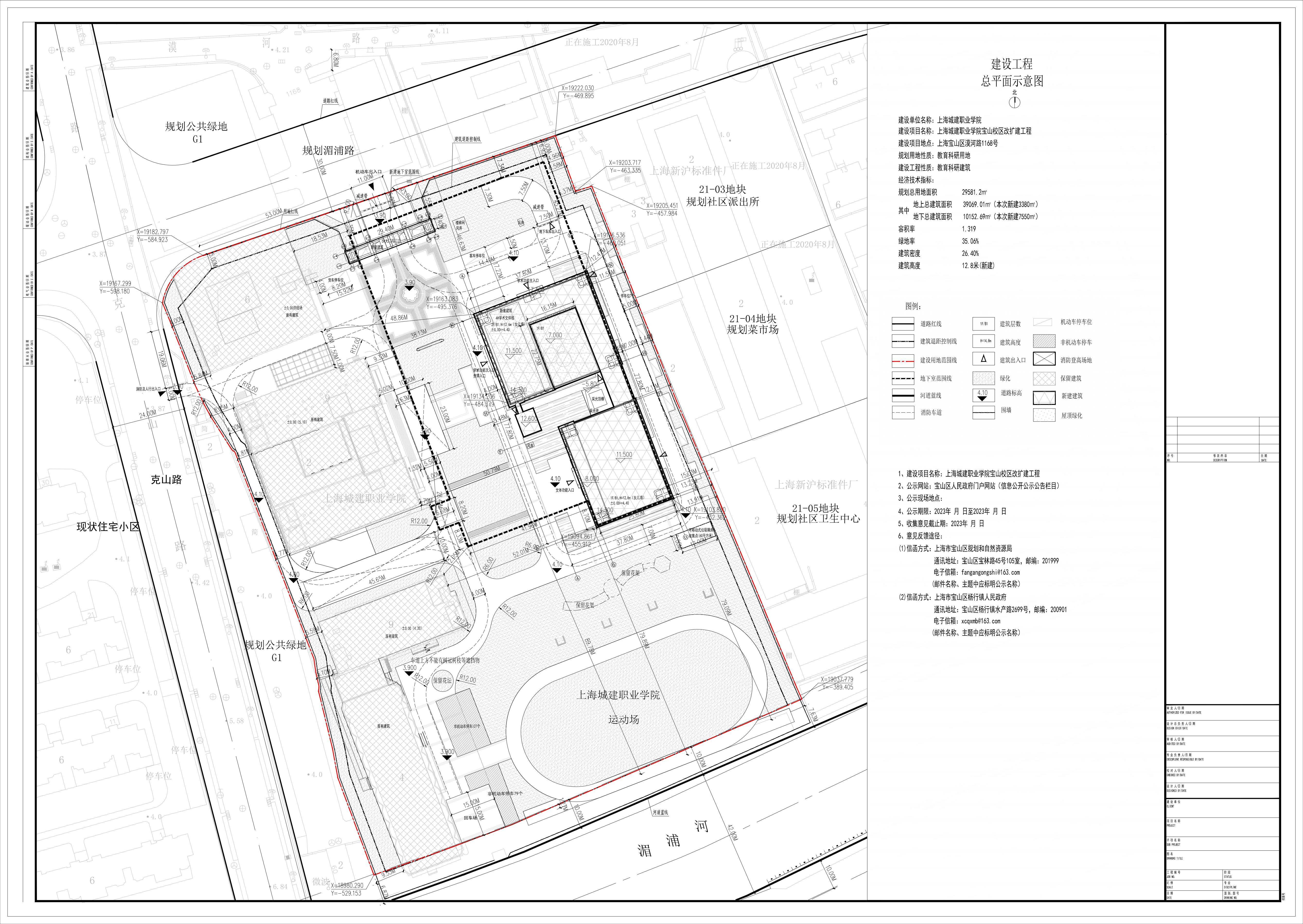
1、建设项目地址:宝山区漠河路1168号
2、公示网站:宝山区人民政府门户网站
3、规划用地性质:科研教育用地
4、建设工程性质:科研教育建筑
5、公示期限:2023年4月11日至2023年4月20日
6、收集意见截止期:2023年4月27日
7、意见反馈途径:公众可通过电话、信函、电子邮件等方式反馈意见
联系电话:021-66879800,021-36552398
联系地址:上海市宝山区宝林路45号105室
相关单位或个人如对本项目设计方案有意见,请在收集公众意见时间内及时反馈。
公告单位:宝山区规划和自然资源局
日期:2023年4月11日
